IndustryContact.cz
| katalog strojírenských firem

Technická dokumentace na zakázku

Fiveco s.r.o., Karásek 2245/1f , Brno

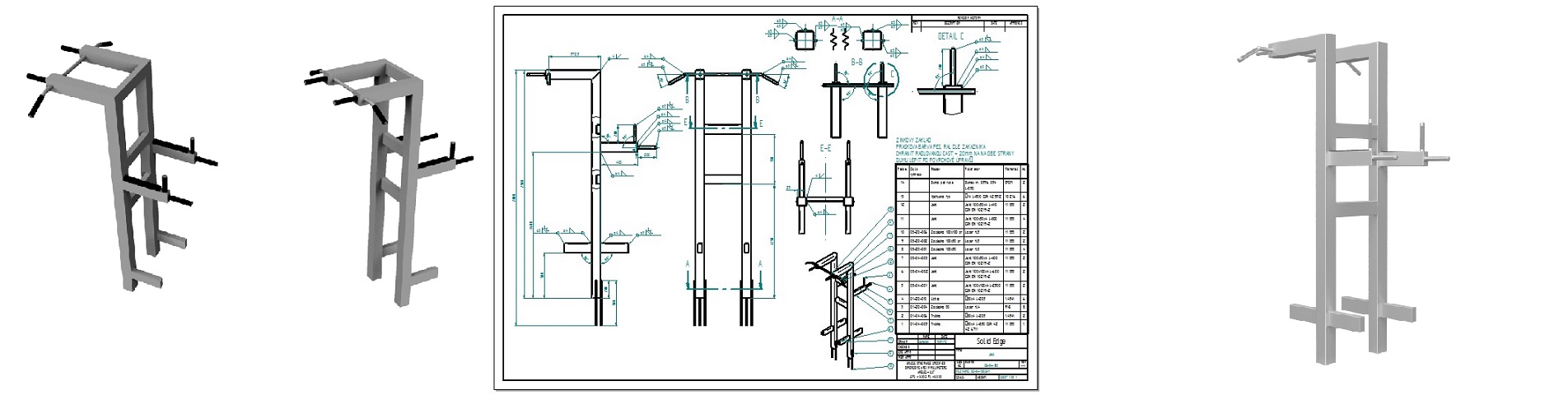
Dle Vašeho nápadu nebo návrhu zpracujeme technickou/výrobní dokumentaci k vašemu výrobku. Dokumentace může obsahovat výkresy v elektronické podobě, včetně formátů .dwg nebo podkladů pro výpalky .dxf.

Firma Fiveco s.r.o.
Adresa Karásek 2245/1f, Brno
Telefonní číslo +420 777 550 764
E-mailová adresa janecek@fiveco.cz

Fotogalerie

Zajímavé produkty jiných firem

Montáže vnitřních rozvodů

  • Lokalita: Vítkovice

Technologické kabiny

  • Lokalita: Vítkovice

Válce

  • Lokalita: Chomutov

Stojánek pojízdný

  • Lokalita: Kralice na Hané

Kovovýroba - lisování

  • Lokalita: Brumovice

Otočný nosič vidlic

  • Lokalita: Vejprty

Výpočty stožárů

  • Lokalita: Otrokovice

Nerez doplňky

  • Lokalita: Benešov nad Ploučnicí

2. Ohýbání plechů na ohraňovacím lise

  • Lokalita: Kralice na Hané

Kontaktní formulář